法国侨网

 找回密码
 注册

只需一步,快速开始

搜索
法国侨网 首页 房地产 查看内容

巴黎房姐(卖房109)巴黎市中心8区好房93,6平方卖147万欧!

2019-11-1 23:54| 发布者: 海芬心语| 查看: 585| 评论: 0

摘要: 《法国侨报》讯:(巴黎房姐卖房109)巴黎市中心8区好房93,6平方卖147万欧!​这是一栋位于小巴黎8区的非常美丽的历史建筑里的三室公寓,法国四楼,因为是历史建筑,无电梯。总面积93.6平方米,3个房间(包括:一个 ...

《法国侨报》讯:(巴黎房姐卖房109)巴黎市中心8区好房93,6平方卖147万欧!


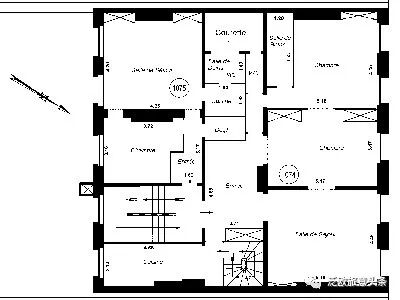
这是一栋位于小巴黎8区的非常美丽的历史建筑里的三室公寓,法国四楼,因为是历史建筑,无电梯。

总面积93.6平方米,3个房间(包括:一个大客厅,一个主卧室,一个饭厅/第二个房间)1间浴室,1个单独的洗手间,1个大的门厅,1个单独的厨房。

整栋公寓安静、充满魅力,到处可见古欧洲的建筑风格;壁炉,古典装饰条、通向公寓的木质楼梯等)。

 

公寓状态非常良好,该建筑是由一位著名建筑师修复的,既保留了原始结构,又适应了当时的需要,这展现了这座建筑在技术上的潜在美学。

 


公寓每季度收取938欧元的管理费(charge),每年的地税(Taxe fonciere)为1185欧元。


售价:147万欧元(不含中介费)


有诚意者速与我们联系吧!

电话:0671252881  0761731150

微信:Q0671252881  feixiang098765

 

巴黎8区介绍:

此区是巴黎市区最热闹、游客最繁多的一区,这里有名扬四海的香榭丽舍大道,全长约2000米,365天天天车水马龙,横跨著名的协和广场一直到凯旋门.

香榭丽舍大道两旁商店尤其多,时装店、精品店、香水店、糕点店等;大街小巷尽是五星级酒店、米其林高级餐厅;

还有警卫森严的总统府爱丽舍宫,内政部、海军部皆在此区,还有大小皇宫、玛德莲教堂等。



(推广)

           




佩服

高兴

支持

新奇

感动

愤怒

难过

流汗

联系我们|侨网简介|关于我们|侨网历史|广告服务|手机版|小黑屋|Archiver|法国侨网  

GMT+1, 2025-12-18 18:05 , Processed in 0.034420 second(s), 19 queries .

Franceqw.com     侨网法律顾问:孙涛律师

网站技术支持:高讯科技

CopyRight © 2008-2013 法国侨网. All Rights Reserved

返回顶部