
在法国投资城堡和酒庄是性价比最高的选择之一。法国地产保值税法健全,可谓寸土寸金,所以早到早选,赶早不赶晚。
在法国,拥有古堡的大多是世袭的贵族或大富商,每座城堡如同每个家族的历史博物馆,承载着一代代人的成长故事。但时至今日, 更加开放的新主人们为古堡带来了新的活力,他们可以为婚礼晚会租借场地承办节日庆典, 很多城堡也是各位社会名流,时尚明星经常光顾之所。电影《达芬奇密码》中有关古堡的相关场景就是在私人城堡维莱特古堡拍摄的,它的主人就是一位华裔女性奥利维耶。其实,拥有一座古堡并不是遥远的梦想,尤其是在法国。
今天小编向大家推荐一座地处法国中部索罗涅地区的18世纪城堡庄园

索罗涅地区城堡
18世纪末期的城堡,总建筑面积1856平方米法国国王拿破仑三世驿站 ,庄园占地176公顷(2640亩)

其中包括: 左右各50公顷(750亩) 的可开发性森林; 60公顷(900亩)的水塘;

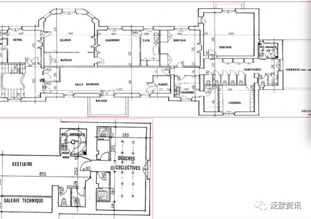
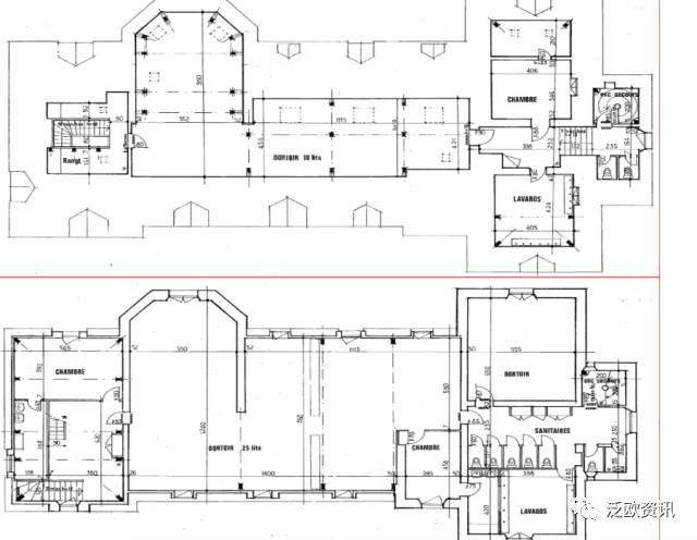
17公顷(255亩)的英式花园;12个建筑楼群;内设 22 个会议室, 1个演艺厅, 1 个综合体操房, 114 个房间, 24 个九张床的集体宿舍.

同时可接纳 400 个客人和 600个人用餐的饭店.1 栋行政办公兼居室楼. 2 两栋居住楼.
地理位置优越

位于法国中部大区SOLOGNE 地区; 处于大负氧离子极高的无工业污 染的森林中; 面向900亩水面的大水塘;

距离巴黎165公里,不到两小时 车程; 距离A71号高速公路8公里; 距离巴黎AUSTERLITZ火车站1 小时45分. 和法国 CAC40 的精英做邻居! 路易威登,布依格等……
业主转让意向
该城堡转让的内容包括:
固定房地产
和经营权

地下室

半地下室与一楼

二楼与三楼
联系方式
巴黎无忧置业
努努:0674 435206;江先生:0669 401 888
微信:oliveinparis